您当前的位置:
住狮城>
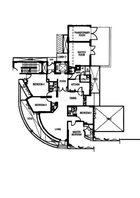
楼盘>EW17-中峇鲁-Tiong Bahru>HOLT RESIDENCES>
详细信息
-
HOLT RESIDENCES
联系时,请告知是在住狮城上看到的,谢谢!
69800896
免责声明:本网站所刊载的"新房"所有资料及图表仅供参考使用,不声明或保证其内容之正确性或可靠性。刊载这些文档不视为HOLT RESIDENCES已取得商品房预售许可证或达到可以销售的标准,且不构成对任何楼盘的购买的邀约或意图。参阅本网站上所刊的文档的人士,应被视为已确认得悉上述立场。购房者依据本网站提供的信息、资料及图表进行房屋交易做造成的任何后果与本网站无关。本网站有权但无此义务,改善或更正资料及图表任何部分之错误或疏忽。以上信息仅供参考,所有信息以开发商提供为准!