313 @ SOMERSET
12750新币/平方尺
Type 3BR-B
1184 平方尺
Type 3BR-A
1227 平方尺
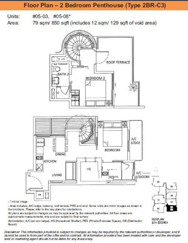
Type 2BR-C3
850 平方尺
Type 2BR-C2
936 平方尺
Type 2BR-C1
936 平方尺
备注:以等额本息计算结果,数据仅供参考

12750新币/平方尺
10830新币/平方尺
1682新币/平方尺
965新币/平方尺
1974新币/平方尺
672新币/平方尺