313 @ SOMERSET
12750新币/平方尺
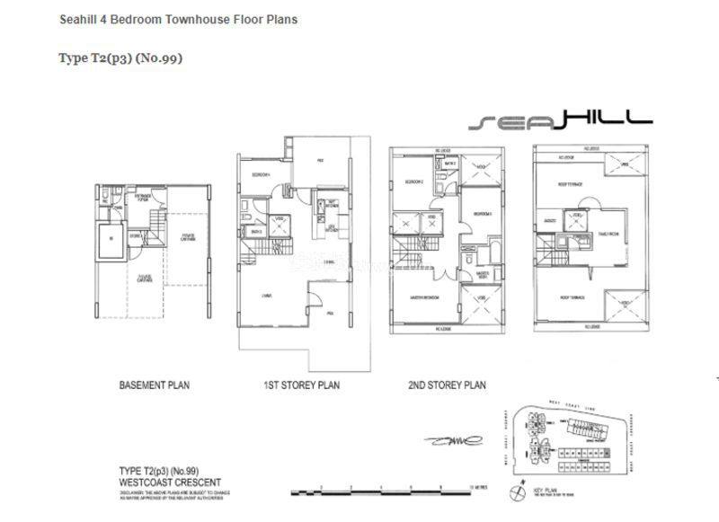
Type T2(p3)
平方尺
Type T1(p2)
平方尺
Type SHCc1(p1)
平方尺
Type SHCc1(b2)
平方尺
Type SHBc1(p1)
平方尺
备注:以等额本息计算结果,数据仅供参考

12750新币/平方尺
10830新币/平方尺
1682新币/平方尺
965新币/平方尺
1974新币/平方尺
672新币/平方尺