热门搜索: jewel  ECO  novena  star  martin  rosewood  丽敦  silversea  seascape  neem 
您当前的位置:住狮城>楼盘>>LUXUS HILLS>详细信息
更新时间:2022-07-08

LUXUS HILLS

别墅洋房

手机找房

售楼处免费咨询电话: 69800896
0条点评 0条问答 已参加团购0人 访问63522人 

  •  LUXUS HILLS
  • 平均单价: 2353 新币/平方尺 查看价格走势 贷款计算器
  • 楼盘特点:
  • 规划户数:
      0户
    产权年限:999年
  • 开盘时间:2018-01-01
    交房时间:2020
  • 建筑类型:
    装修情况
  • 楼盘地址:新加坡 查看地图
  • 查看LUXUS HILLS详细信息>>

联系时,请告知是在住狮城上看到的,谢谢!

69800896

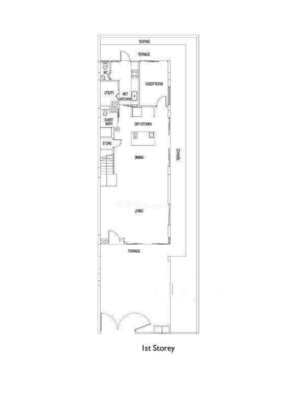
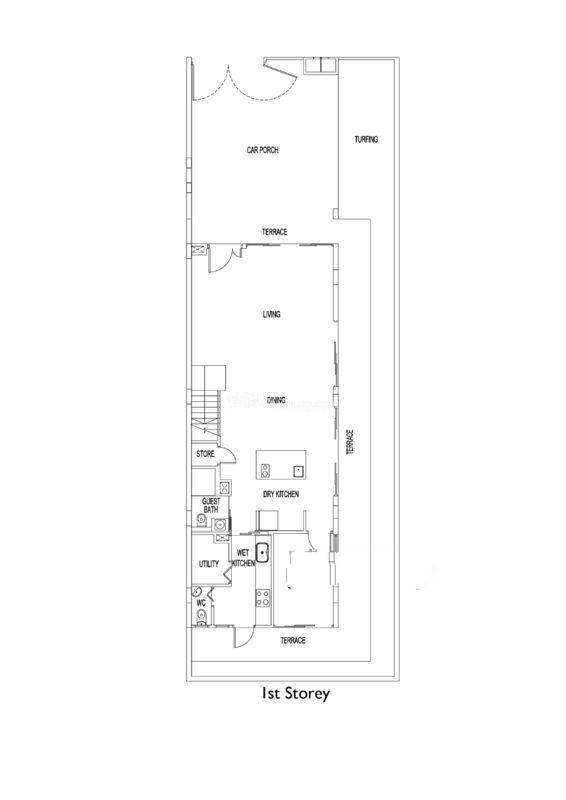
LUXUS HILLS户型

  • 3584 平方尺
  • 3584 平方尺
  • 3584 平方尺
  • 3584 平方尺
  • 3563 平方尺

地图 | 街景 楼盘地图 | 测距 | 驾车

LUXUS HILLS周边配套地图
LUXUS HILLS参考月供

计算条件

% 年利率

计算结果

月均还款 - 新币

  • -
  • -
  • -

备注:以等额本息计算结果,数据仅供参考

更多…LUXUS HILLS价格走势
当前参考售价: 2353新币/平方尺
更多…价位相近楼盘
LUXUS HILLS跟谁PK
网友正在关注的楼盘
免责声明:本网站所刊载的"新房"所有资料及图表仅供参考使用,不声明或保证其内容之正确性或可靠性。刊载这些文档不视为LUXUS HILLS已取得商品房预售许可证或达到可以销售的标准,且不构成对任何楼盘的购买的邀约或意图。参阅本网站上所刊的文档的人士,应被视为已确认得悉上述立场。购房者依据本网站提供的信息、资料及图表进行房屋交易做造成的任何后果与本网站无关。本网站有权但无此义务,改善或更正资料及图表任何部分之错误或疏忽。以上信息仅供参考,所有信息以开发商提供为准!