您当前的位置:
住狮城>
楼盘>NE10-波东巴西-Potong Pasir>MYRA>
详细信息
-
MYRA
- 平均单价:
1932 新币/平方尺
查看价格走势 贷款计算器
-
楼盘特点:
-
产权年限:9999年
开盘时间:2020-01-01
交房时间:2023
建筑类型:小高
装修情况:
- 楼盘地址:NE-紫线 NE10-波东巴西-Potong Pasir 9 Meyappa Chettiar Rd, Singapore 358456查看地图
- 查看MYRA详细信息>>
联系时,请告知是在住狮城上看到的,谢谢!
69800896
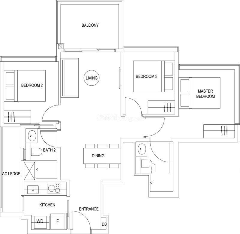
MYRA户型
-
872 平方尺
-
473 平方尺
免责声明:本网站所刊载的"新房"所有资料及图表仅供参考使用,不声明或保证其内容之正确性或可靠性。刊载这些文档不视为MYRA已取得商品房预售许可证或达到可以销售的标准,且不构成对任何楼盘的购买的邀约或意图。参阅本网站上所刊的文档的人士,应被视为已确认得悉上述立场。购房者依据本网站提供的信息、资料及图表进行房屋交易做造成的任何后果与本网站无关。本网站有权但无此义务,改善或更正资料及图表任何部分之错误或疏忽。以上信息仅供参考,所有信息以开发商提供为准!